Skip to content Skip to footer

Modern Yaşam Alanları ile Tanışın

Güneş, huzur ve sessizliğiyle yeni yaşam alanları tam size göredir.

 

Rahatlığın ve Huzurun Adresi

Lux 3+1 Daireler

160 M2 oturma alnı ile 3+1 Lux daireler.
Açık hava bol güneş, kapalı otopark şehir merkezine yakın olan daireler size rahatlığın ve huzurun merkezini sunacaktır.

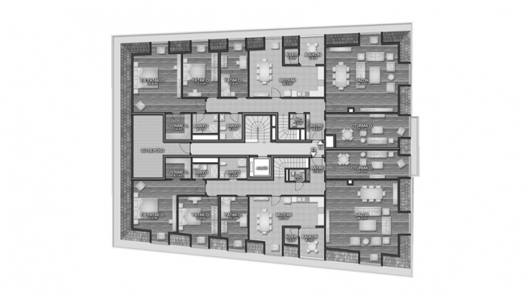
Apartman Planları

Çatı Katı Planı

  • Bedrooms 2
  • Bathrooms 1
  • Area size 100 m2
  • Garages 1
Çatı Katı Planı

2. Kat Planı

  • Bedrooms 2
  • Bathrooms 1
  • Area size 100 m2
  • Garages 1
2. Kat Planı

Bodrum Katı

  • Area size 80.12 m2
Bodrum Katı

Zemin Kat Planı

  • Bedrooms 2
  • Bathrooms 1
  • Area size 100 m2
  • Garages 1
Zemin Kat Planı

Modern Yaşam Alanları

Daire içlerinde yumuşak kum beji rengi kullanıldı. Geniş balkon, barbekü ve kileri ile konforlu bir yaşam alanı sunar. Dairelerimiz geniş balkon manzarası ile size farklı bir ortam sunacaktır.

Tüm dairelerde modern ve geniş bir mutfak yer almaktadır. Dairelerimizde tüm köşelerde dekoratif alçıpen kullanılmıştır. Dış kapı çelik kapı daire ile uyumlu renk ve tasarıma sahiptir.

  • Dekoratif Duvarlar
  • Renk Uyumu
  • Geniş Balkon
 
  • Modern  ve Geniş Banyo
  • Rahat, Geniş Mutfak
 

Yeni Yaşam Alanları

Das Konut yapı sizlere rahat ve modern yaşam alanları sunar. Tam zamanında dairelerinizi teslim etmenin yanı sıra ödeme kolaylığı ile de avantajlar sunar. Devam eden projemizi aşağıdaki link üzerinden inceleyebilirsiniz.

0 +
Lux Daireler
0 +
İş Yeri
0 +
Mutlu Müşteri
Best Choice for Creatives
This Pop-up Is Included in the Theme

 

Purchase Amuli